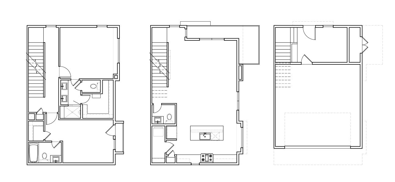
8th st. Patios @ Bishop Artcoder2025-05-20T16:05:00-05:00
8th st. Patios @ Bishop Art
Coming soon:
16 Beautiful MODERN LUXURY CONDO’S
** Royalty Homes reserves the right to make changes to floor plans, exterior designs, and specifications. Price, features, and terms are subject to change. Square footage is approximate.