The Brooks is an exciting upcoming new venture of Nayar Construction & Development offering Luxury Terrace Homes in the Historic Frisco’s Rail District. The Brook at the Rail is located at 8385 Carrol Circle along with a separate entrance off of Main Street providing connectivity to upcoming “The Patio’s at the Rail”. A great opportunity to own an upscale rooftop terrace townhome surrounded with carved out pathways, calming green spaces full of trees, natural water creek feature and yet in the heart of Frisco downtown. A gateway to live in complete serenity and yet just at a stepping distance to all the local Frisco downtown favorites to keep you entertained.
Featuring
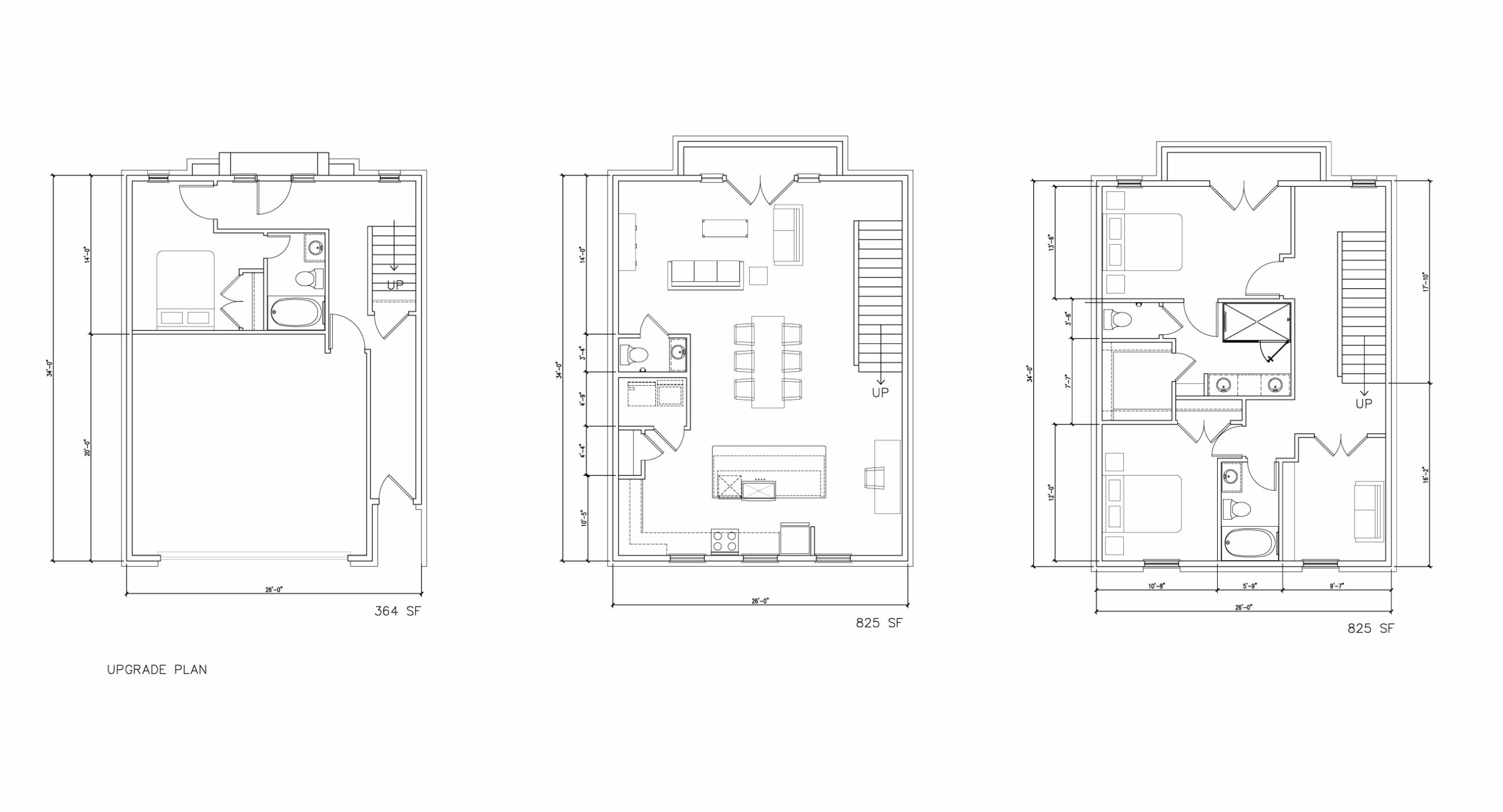
- 9 Upscale Terrace residential townhomes
- Offering two plans ranging from 2000 SF to 2300 SF
- Open space area in front of each site
- Oversized double Garage
- Balconies overlooking the Open Park & Green Space with mature trees
- 1 min walk to coffee shops, Gym, Restaurants located at the Patios.
And much more to offer
** Royalty Homes reserves the right to make changes to floor plans, exterior designs, and specifications. Price, features, and terms are subject to change. Square footage is approximate.



